240 Maccoun Street Moncton, New Brunswick E1K 0A1

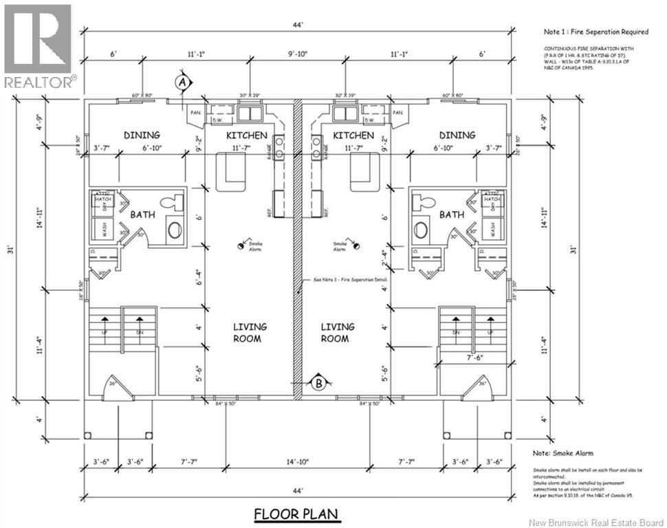
3 Bedroom 2 Bathroom 1,364 ft2
Split Entry Bungalow Heat Pump Baseboard Heaters, Heat Pump

$315,900

This brand new construction is located in the Sterling Meadows subdivision off of Shediac Road, and close to the Trans-Canada Highway and Harrisville Blvd. Kitchen appliances are included in the purchase price. A paved driveway, topsoil and seed to be included but will hold no warranty. The LUX New Home warranty is included in the purchase price. *This property qualifies for the First-Time Home Buyer GST/HST new housing rebate* (id:35613)

Open House

This property has open houses!

May
10
Sunday
Starts at:

2:00 pm

Ends at:

4:00 pm

Property Details

MLS® Number NB127270
Property Type Single Family

Building

Bathroom Total 2
Bedrooms Below Ground 3
Bedrooms Total 3
Architectural Style Split Entry Bungalow
Constructed Date 2025
Cooling Type Heat Pump
Exterior Finish Vinyl
Flooring Type Laminate
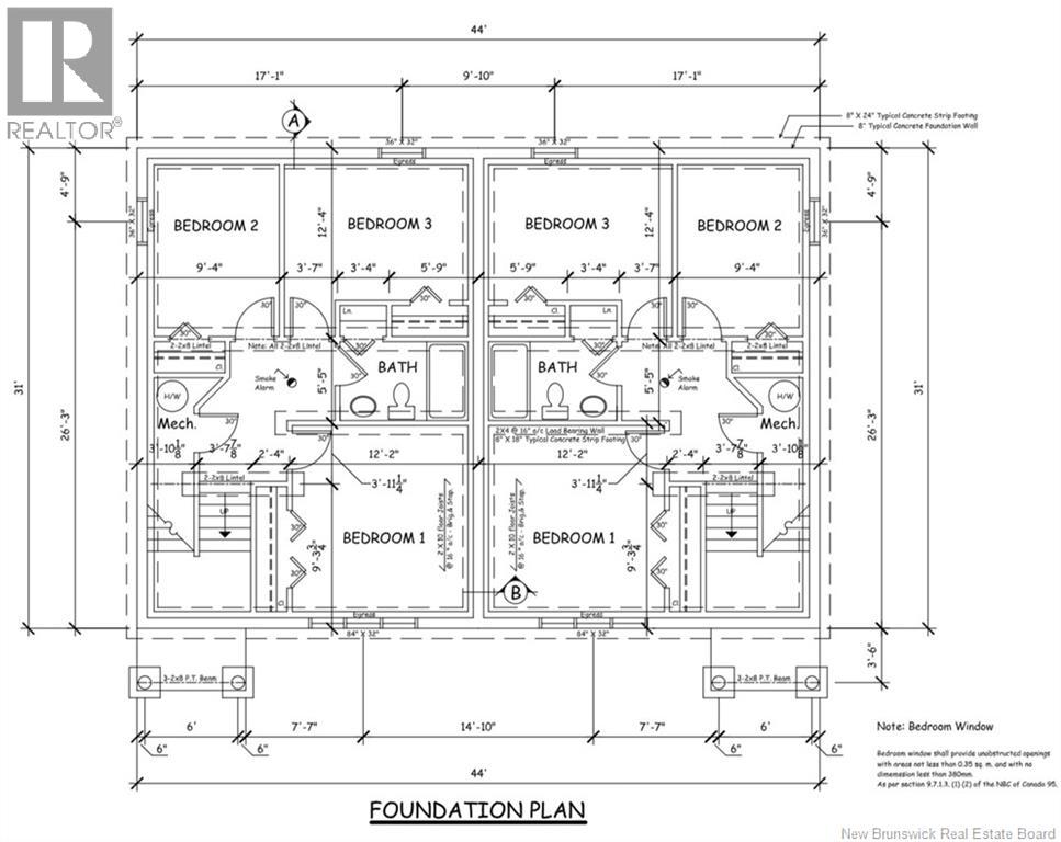
Foundation Type Concrete
Half Bath Total 1
Heating Fuel Electric
Heating Type Baseboard Heaters, Heat Pump
Stories Total 1
Size Interior 1,364 Ft2
Total Finished Area 1364 Sqft
Type House
Utility Water Municipal Water

Land

Access Type Year-round Access, Public Road
Acreage No
Sewer Municipal Sewage System
Size Irregular 361
Size Total 361 M2
Size Total Text 361 M2

https://www.realtor.ca/real-estate/28910956/240-maccoun-street-moncton