3 Bedroom
3 Bathroom
1,634 ft2
Bungalow
Heat Pump
Baseboard Heaters, Heat Pump
Acreage
$699,900
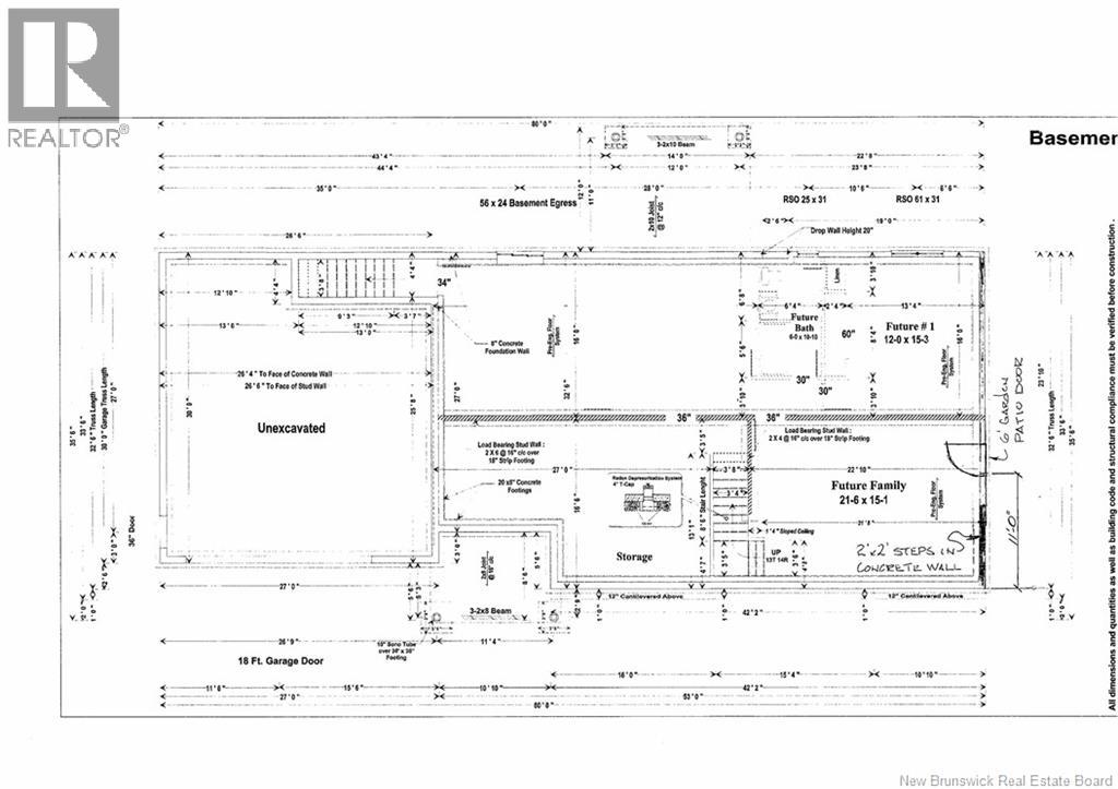
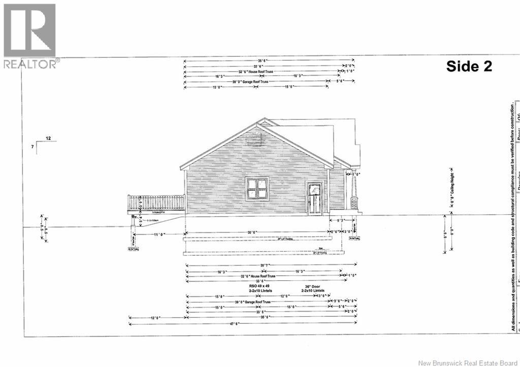
Welcome to 99 Maefield in sought-after White Birch Estates, where modern design meets peaceful 1.5-acre living just minutes from everyday amenities. This beautifully crafted home offers thoughtful finishes, smart functionality, and exciting future potential. Step inside to a bright, welcoming foyer that opens into a stunning main living space featuring engineered European Oak flooring throughout. The kitchen is both stylish and timeless, showcasing off-white cabinetry, white quartz countertops, a statement island with warm wood accents, and a seamless flow into the dining and living areas - perfect for everyday living & entertaining. The spacious primary suite is designed as a true retreat, complete with a luxurious ensuite bath and his-and-hers walk-in closets. Two additional bedrooms, a well-appointed main bath and a convenient powder room with laundry (located just off the garage entrance for maximum practicality!) complete this level. Comfort is ensured year-round with two mini-split heat pumps. Downstairs, the unfinished walkout basement with a *separate entrance from the garage* offers incredible flexibility. Whether you envision additional living space, multi-generational living, or future income potential, the opportunity is there. Set on a private 1.5-acre lot in one of the areas most desirable communities, this home offers space, style, and room to grow! Anticipated completion date: May 31, 2026. (id:35613)
Property Details
|
MLS® Number
|
NB133951 |
|
Property Type
|
Single Family |
|
Equipment Type
|
Water Heater |
|
Rental Equipment Type
|
Water Heater |
Building
|
Bathroom Total
|
3 |
|
Bedrooms Above Ground
|
3 |
|
Bedrooms Total
|
3 |
|
Architectural Style
|
Bungalow |
|
Basement Development
|
Unfinished |
|
Basement Features
|
Walk Out |
|
Basement Type
|
Full (unfinished) |
|
Constructed Date
|
2025 |
|
Cooling Type
|
Heat Pump |
|
Exterior Finish
|
Brick, Vinyl |
|
Flooring Type
|
Ceramic, Hardwood |
|
Foundation Type
|
Concrete |
|
Half Bath Total
|
1 |
|
Heating Type
|
Baseboard Heaters, Heat Pump |
|
Stories Total
|
1 |
|
Size Interior
|
1,634 Ft2 |
|
Total Finished Area
|
1634 Sqft |
|
Type
|
House |
|
Utility Water
|
Well |
Parking
Land
|
Access Type
|
Year-round Access, Public Road |
|
Acreage
|
Yes |
|
Sewer
|
Septic System |
|
Size Irregular
|
6070 |
|
Size Total
|
6070 M2 |
|
Size Total Text
|
6070 M2 |
Rooms
| Level |
Type |
Length |
Width |
Dimensions |
|
Main Level |
Bedroom |
|
|
9'8'' x 12'8'' |
|
Main Level |
Bedroom |
|
|
9'10'' x 12'0'' |
|
Main Level |
Other |
|
|
6'2'' x 4'10'' |
|
Main Level |
Other |
|
|
3'4'' x 6'8'' |
|
Main Level |
Other |
|
|
11'8'' x 8'0'' |
|
Main Level |
Primary Bedroom |
|
|
12'0'' x 15'0'' |
|
Main Level |
4pc Bathroom |
|
|
8'0'' x 6'8'' |
|
Main Level |
Pantry |
|
|
8'0'' x 8'0'' |
|
Main Level |
Kitchen |
|
|
10'8'' x 15'0'' |
|
Main Level |
Dining Room |
|
|
9'2'' x 15'0'' |
|
Main Level |
Living Room |
|
|
15'4'' x 18'2'' |
|
Main Level |
Laundry Room |
|
|
8'0'' x 6'8'' |
|
Main Level |
Foyer |
|
|
8'8'' x 10'8'' |
https://www.realtor.ca/real-estate/29388574/99-maefield-street-lower-coverdale