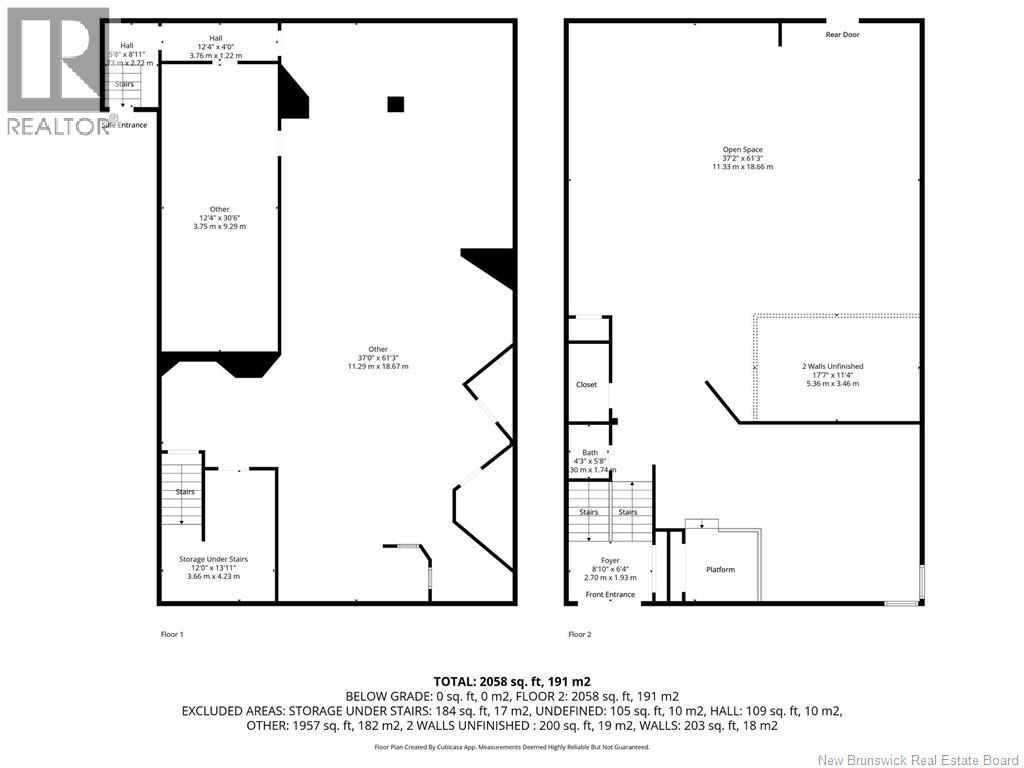
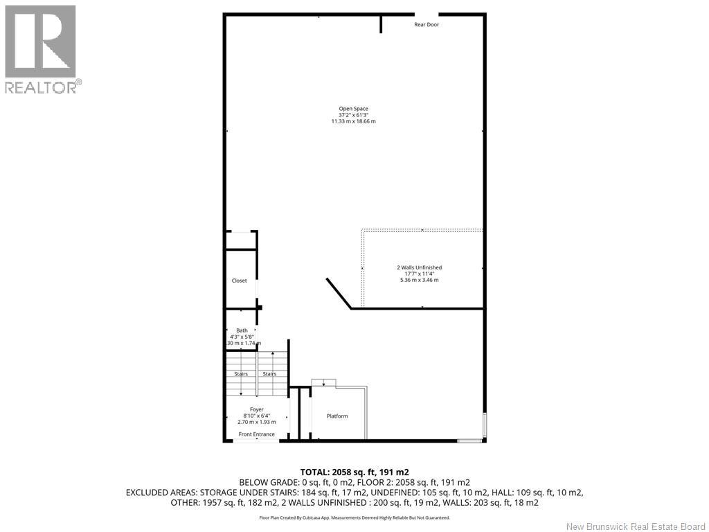
2058 sqft
Air Exchanger
$229,900
Formerly home to the Restigouche Regional Museum, this vacant Retail property offers excellent visibility, parking, an unfinished basement and a high-traffic corner location ideal for many possibilities. Over the past year renovations have been underway giving the next owner a great start toward refreshing the space. Property is being sold As Is, Where Is. HST is not included in the purchase price. Buyer to verify intended use with the local Planning Commission. This property is ready to welcome its next purpose and to turn your vision into reality, call your REALTORS® today! (id:35613)
Property Details
|
MLS® Number
|
NB128832 |
|
Property Type
|
Other |
|
Amenities Near By
|
Shopping |
|
Features
|
Corner Site, Visual Exposure |
|
Structure
|
None |
Building
|
Cooling Type
|
Air Exchanger |
|
Exterior Finish
|
Brick |
|
Heating Fuel
|
Electric |
|
Size Interior
|
2058 Sqft |
|
Total Finished Area
|
2058 Sqft |
Land
|
Access Type
|
Year-round Access |
|
Acreage
|
No |
|
Land Amenities
|
Shopping |
|
Size Irregular
|
864 |
|
Size Total
|
864 M2 |
|
Size Total Text
|
864 M2 |
https://www.realtor.ca/real-estate/29009586/549-adelaide-street-dalhousie