3060 sqft
$415,000
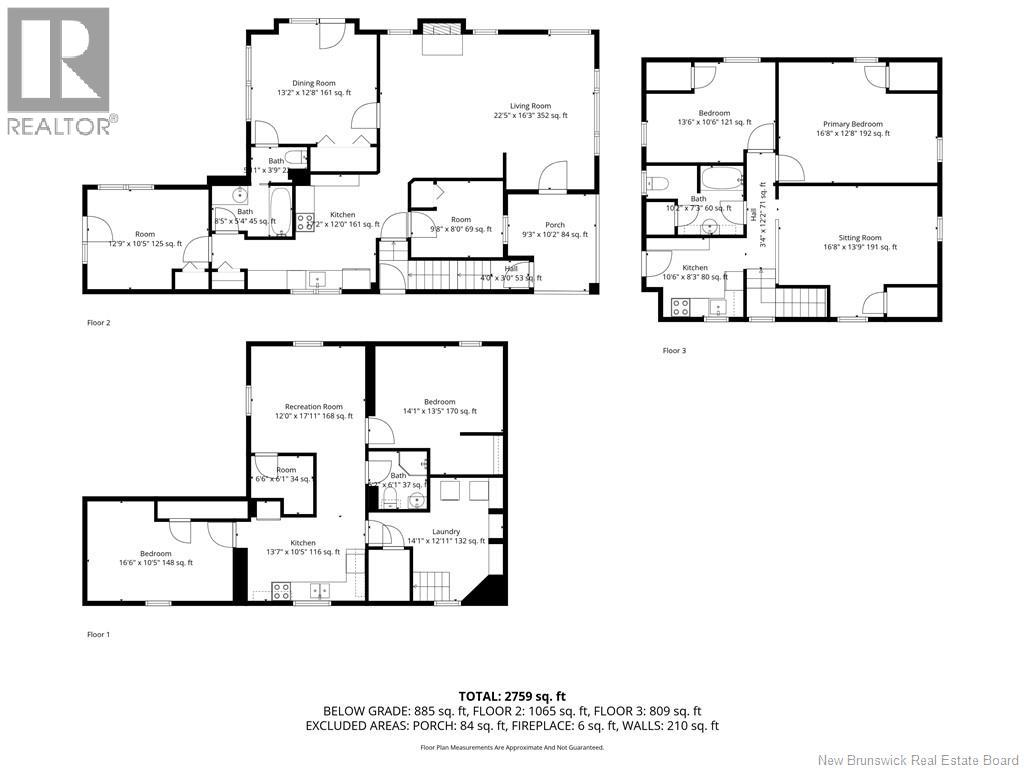
Welcome to 253- 253.5 Weldon Street, a spacious duplex with in-law suite in the heart of Moncton, offering an exceptional opportunity for investors or owner-occupants looking to maximize rental income in a sought-after, walkable location. This property features three self-contained living spaces: a 3-bedroom main floor unit (vacant), a 2-bedroom upper unit (currently rented), and a 2-bedroom in-law suite in the basement (vacant), all with private entrances and shared onsite laundry. Significant upgrades provide peace of mind and future value: steel roof (2014), new windows in the upper unit (2014), updated windows in the main floor unit (September 2025), brand-new fencing (September 2025), and some electrical updates in the upper unit (2014). With a projected gross monthly rent of $4,125 when fully occupied, this property offers solid cash flow potential. Ideally located just steps from beautiful Victoria Park and the George Dumont Hospital, downtown amenities, transit routes, restaurants, and the Capitol Theatre this home provides the perfect blend of urban convenience and community charm. Whether you're looking to expand your portfolio or live in one unit while renting the others, 253 Weldon is a smart, flexible investment in one of Monctons most established neighbourhoods. Book your private viewing today. (id:35613)
Property Details
|
MLS® Number
|
NB128264 |
|
Property Type
|
Multi-family |
Building
|
Exterior Finish
|
Vinyl |
|
Flooring Type
|
Hardwood |
|
Foundation Type
|
Concrete |
|
Heating Fuel
|
Electric |
|
Size Interior
|
3060 Sqft |
|
Total Finished Area
|
3060 Sqft |
|
Type
|
Duplex |
|
Utility Water
|
Municipal Water |
Land
|
Access Type
|
Year-round Access |
|
Acreage
|
No |
|
Sewer
|
Municipal Sewage System |
|
Size Irregular
|
458 |
|
Size Total
|
458 M2 |
|
Size Total Text
|
458 M2 |
https://www.realtor.ca/real-estate/28970183/253-weldon-street-moncton