2 Bedroom
2 Bathroom
960 sqft
Heat Pump
Baseboard Heaters, Heat Pump
$215,000
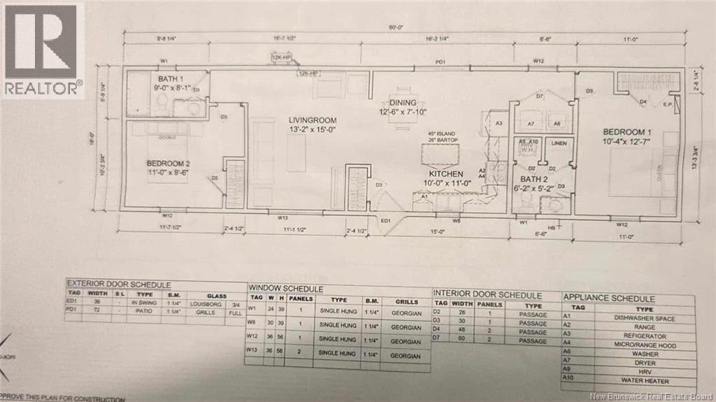
Welcome to this well-maintained 2019 Supreme Minihome located in the sought-after Gretna Green Minihome Park. Measuring 16 x 60, this attractive home offers a bright and functional layout with two bedrooms and one-and-a-half bathrooms, set on a desirable end lot that provides extra privacy with trees along the back and one side, and only one neighboring home. The spacious open-concept kitchen, dining, and living area features cathedral ceilings, creating a bright and inviting atmosphere throughout. The kitchen offers beautiful cabinetry, a large island with electrical outlet, ample storage space, and a generous work surface ideal for meal preparation. Patio doors off the dining area open to a back step, perfect for outdoor relaxation or barbecuing. The primary bedroom is located at one end of the home and includes a private half bath and laundry area, while the second bedroom and main full bath are situated at the opposite end, providing a comfortable separation of space. Interior finishes include laminate flooring in the living room and bedrooms, and linoleum flooring in the kitchen and bathrooms for easy maintenance and durability. Outside, the property offers a nice-sized lot with two storage sheds and mature trees that add shade and privacy. This home has been well cared for and is move-in ready, offering comfortable, low-maintenance living in a quiet and friendly community setting. Home is Move-In Ready (id:35613)
Property Details
|
MLS® Number
|
NB129656 |
|
Property Type
|
Single Family |
|
Equipment Type
|
None |
|
Rental Equipment Type
|
None |
|
Structure
|
Shed |
Building
|
Bathroom Total
|
2 |
|
Bedrooms Above Ground
|
2 |
|
Bedrooms Total
|
2 |
|
Basement Type
|
None |
|
Constructed Date
|
2019 |
|
Cooling Type
|
Heat Pump |
|
Exterior Finish
|
Vinyl |
|
Flooring Type
|
Laminate, Linoleum |
|
Foundation Type
|
Block, Concrete |
|
Half Bath Total
|
1 |
|
Heating Fuel
|
Electric |
|
Heating Type
|
Baseboard Heaters, Heat Pump |
|
Size Interior
|
960 Sqft |
|
Total Finished Area
|
960 Sqft |
|
Type
|
Manufactured Home |
|
Utility Water
|
Municipal Water |
Land
|
Acreage
|
No |
|
Sewer
|
Municipal Sewage System |
Rooms
| Level |
Type |
Length |
Width |
Dimensions |
|
Main Level |
Bath (# Pieces 1-6) |
|
|
8'8'' x 5'1'' |
|
Main Level |
Bedroom |
|
|
13'3'' x 9'6'' |
|
Main Level |
Ensuite |
|
|
6'1'' x 5'2'' |
|
Main Level |
Primary Bedroom |
|
|
12'6'' x 10'3'' |
|
Main Level |
Living Room |
|
|
13'5'' x 12'1'' |
|
Main Level |
Kitchen/dining Room |
|
|
15'3'' x 14'5'' |
https://www.realtor.ca/real-estate/29066143/24-olivia-miramichi